≪事務所兼居宅のご紹介です≫ 横手市前郷一番町【価格】800万円 横手駅まで徒歩7分
2026/02/27
物件の特徴
キッチン | プロパンガス |
|---|---|
建物設備 | 水道(公営)/公共下水/電気有/バス専用/トイレ専用/1982年9月築 |
設備 | 鉄骨造/225.45㎡/坪/3階建/空家/中古物件/ |
周辺環境 | 明照保育園まで徒歩約4分/上宮第一幼稚園まで徒歩約9分/秋田県立横手高校青雲館まで徒歩約4分/秋田県立衛生看護学院徒歩約8分/ECCジュニア横手西教室まで徒歩約19分/記念公園徒歩約12分/横手駅前温泉徒歩約7分/ヤマザワよねや南店徒歩約6分/まえごう調剤薬局徒歩約2分/(株)金喜書店徒歩約11分/熊谷医院まで徒歩約9分/八木橋医院徒歩2分 |
【価格】 800万円
所 在 地 | 秋田県横手市前郷一番町6-22 |
|---|---|
建物名 | 横手市前郷一番町事務所居宅 |
交 通 | 奥羽本線 横手駅 徒歩7分、北上線 横手駅 徒歩7分 |
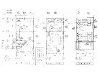
階建て / 間取り | 3階建 / 鉄骨造 3DK 和室4.5帖1室 和室6.0帖2室 DK6.0帖1室 |
接道状況 | 一方 方向:南 間口0.0m 公道 幅員24.0m |
現況 / 引渡時期 | 空事務所/即時 |
築年月 | 1982年9月 |
建ぺい率 / 容積率 | 80% / 400% |
土地面積・建物面積 / 坪数 | 115.46㎡/34.92坪 建物面積 225.45㎡/68.19坪 |
土地権利 | 所有権 |
用途地域 | 商業地域 |
地 勢 | 平坦 |
都市計画 | 非線引区域 |
地目 | 宅地 |
国土法届出要否 | 不要 |
取引態様 | 一般媒介 |
情報更新日 | 2026年2月27日 |
🎊ポイント🎊
1. 横手駅徒歩7分の抜群のアクセス立地
2. 商業地域×容積率400%の高い活用可能性
3. 生活に必要な施設が全て徒歩圏内の利便性
4. 事務所・住宅どちらにも対応できる柔軟な間取り
5. 鉄骨造3階建ての堅牢で広々とした建物
🍃詳細
横手市の中心部に位置するこちらの物件は、横手駅から徒歩わずか7分という利便性の高い立地が最大の魅力です。商業地域に建つため、事務所として活用するもよし、リノベーションして住宅として利用するもよし、幅広い用途でご活用いただけます。
建物は鉄骨造3階建てで約68坪の広々とした空間を確保。3DKの間取りは用途に応じて自由にレイアウト変更が可能です。周辺にはコンビニ、薬局、病院、スーパー、銀行が徒歩圏内に揃っており、日常生活に必要な施設へのアクセスも抜群です。
容積率400%という高い建築可能性を秘めた商業地域の立地は、将来的な建て替えや増築の選択肢も広げてくれます。横手市で新しいスタートを切りたい方にとって、理想的な環境が整った物件です。














